Property Details
Basic Information
- Property Type: Single Family
- MLS Number: 5058772
- MLS Status: Active
- Lot Description: Waterfront
- Acreage: 0.29
- Foreclosure: No
- Virtual Tour: Virtual Tour
- Latitude: 43.586415
- Longitude: -71.391318
Building
- Property Style: Adirondack
- Square Feet: 5,165
- Year Built: 2025
- Zoning: SFR
- Stories: 2
- Building Construction: Wood Frame, Composition Exterior
- Foundation: Concrete
- Garage Spaces: 2
Location
- Town: Gilford
- State: NH
- Zip: 03249
Finance
- Tax Year: 2024
Water
- Water Access: Owned
- Water Body Name: Lake Winnipesaukee
- Water Body Type: Lake
- Water View: Yes
- Waterfront: 125
Interior Features
Bedrooms
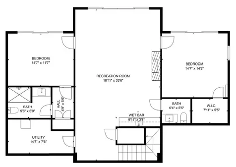
- Bedrooms: 6
Bathrooms
- Bathrooms: 7
- Full Baths: 1
Basement
- Basement: Finished, Full, Walkout
Other
- Interior Features: Bar, Cathedral Ceiling, Dining Area, Gas Fireplace,2 Fireplaces, Kitchen Island, Kitchen/Dining, Kitchen/Living, LED Lighting, Primary BR w/ BA, Natural Light, Walk-in Closet, Wet Bar, Programmable Thermostat,1st Floor Laundry,2nd Floor Laundry
Exterior Features
Features
- Driveway: Paved
- Road Frontage: 100
- Exterior Features: Boat Slip/Dock, Docks, Boat House, Deck, Patio, Porch, Covered Porch, Private Dock, Slip, Window Screens, Low E Window(s), Beach Access
Utilities and Appliances
Utilities and Appliances
- Appliances Included: Dishwasher, ENERGY STAR Qual Dryer, Range Hood, Microwave, Mini Fridge, ENERGY STAR Qual Washer, On Demand Water Heater, Wine Cooler, Dual Fuel Range, Vented Exhaust Fan
- Heat System: Propane, Forced Air, Hot Air, Multi Zone
Community
Schools
- Elementary School: Gilford Elementary
- Junior High: Gilford Middle
- High School: Gilford High School




























































