Property Details
Basic Information
- Property Type: Single Family
- MLS Number: 5076155
- MLS Status: Pending
- Lot Description: Corner, Country Setting, Landscaped, Level, Sloping, Wooded
- Acreage: 1
- Foreclosure: No
- Virtual Tour: Virtual Tour
- Latitude: 43.14931
- Longitude: -71.572902
Building
- Property Style: Raised Ranch, Split Entry
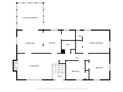
- Square Feet: 1,782
- Year Built: 1969
- Zoning: RES
- Stories: 1
- Building Construction: Wood Frame, Clapboard Exterior
- Foundation: Concrete
- Garage Spaces: 1
Location
- Town: Bow
- State: NH
- Zip: 03304
Finance
- Tax Year: 2025
Interior Features
Bedrooms
- Bedrooms: 3
Bathrooms
- Bathrooms: 2
- Full Baths: 1
Basement
- Basement: Concrete, Daylight, Exterior Access, Full, Interior Stairs, Partially Finished
Other
- Interior Features: Attic with Hatch/Skuttle, Dining Area, Wood Fireplace,2 Fireplaces, Primary BR w/ BA,1st Floor Laundry, Attic with Pulldown
Exterior Features
Features
- Parking Description: Auto Open, Direct Entry, Driveway, Garage, Parking Spaces 3 - 5, Paved, Attached
- Driveway: Paved
- Road Frontage: 370
- Exterior Features: Enclosed Porch, Shed
Utilities and Appliances
Utilities and Appliances
- Appliances Included: Dishwasher, Electric Range, Exhaust Fan
- Heat System: Oil, Baseboard, Hot Water, Boiler
Community
Schools
- Elementary School: Bow Elementary
- Junior High: Bow Memorial School
- High School: Bow High School
















































